Revitalization of the Qazvin Flour Factory: From Abandoned Industrial Architecture to the Cultural Heart of the City

The Qazvin Flour Factory, built in the early 20th century, once stood as a landmark of industrial architecture in Iran and played a vital role in the city’s economy and social life. With the closure of its production lines, however, the factory was abandoned and gradually turned into a forgotten void in the heart of the city. The deterioration of its brick structures, the absence of activity, and the loss of community presence transformed the site into an urban problem rather than an asset.

This project, developed as the Master’s thesis of Elham Naderi at Anhalt University of Applied Sciences under the supervision of Professor Omar Akbar (member of the Aga Khan Award jury) and Dr. Damoon Vahabi Moghadam, sought to respond to this challenge. The aim was to propose a conceptual design that, through adaptive reuse and a human-centered approach, would transform the abandoned industrial complex into a vibrant cultural hub for Qazvin.

Design Approach
The concept was based on three key principles:
- Preservation of architectural heritage: Historic buildings and brick façades were preserved without altering their structure or proportions.
- Adaptive reuse as a catalyst: The factory’s reuse was envisioned as a driver for neighborhood regeneration and a new identity for the city.
- Human-centered design: Spaces were created to strengthen community interaction and establish a natural connection between past and present.

Proposed Functions
The cultural center was envisioned with diverse uses:
- Museum and exhibition space to narrate the factory’s history and industrial heritage.
- Performing arts center with a focus on music education and performances, especially for children and teenagers.
- Flexible spaces for temporary exhibitions, handicraft fairs, and local markets.
- Open-air stages for cultural and artistic programs in public outdoor areas.
- Public plazas and gathering spaces for rest, family interaction, and social exchange.
Rooted in the family-oriented culture of Iran, this program was designed to respond to Qazvin’s cultural needs while also becoming a new social landmark and a potential tourist attraction.

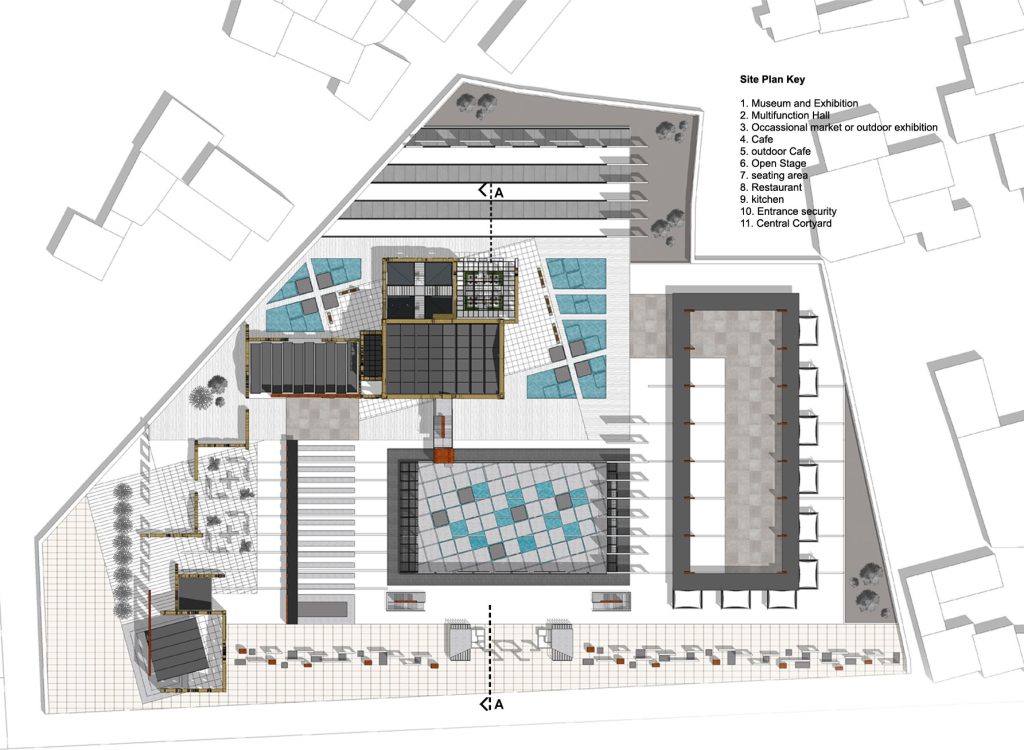
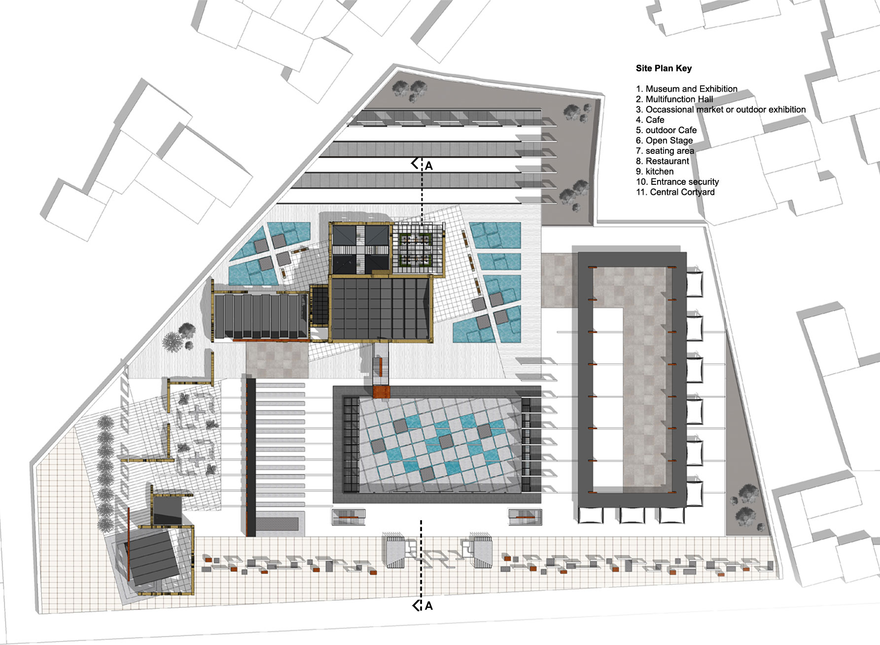
Zoning
The design proposed two main zones:
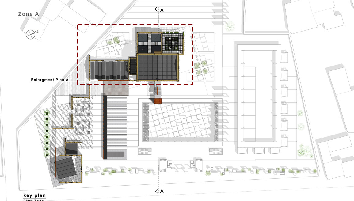
- Zone One (Historic Buildings): The main factory building was converted into a museum, with additional functions such as a multipurpose hall, café, restaurant, and an open-air performance stage.
Zone Two (New Structures): New lightweight pavilions for temporary markets and an underground art center with a central courtyard dedicated to children’s and youth’s educational and performance activities.

Design Concepts
To merge history with modernity, several design ideas were developed:
- Use of modern dark-toned materials alongside the historic brickwork to emphasize contrast and highlight heritage.
- Inspiration from the traditional Iranian central courtyard for the underground spaces, offering cool and calm environments.
- Reinterpretation of the factory’s arches in a contemporary language.
- A dynamic restaurant design with architectural rotation to attract visitors.

Urban Impact
Beyond architecture, the project aimed to address broader urban challenges. The revitalization reactivated a forgotten void, eliminated insecurity and decay, and provided much-needed cultural and public spaces. The new central plaza and public courtyards created opportunities for festivals, social encounters, and collective memory. On a larger scale, the project reintroduced Qazvin’s industrial heritage into the urban identity and turned an abandoned site into a living cultural landmark.